305-мм орудие Mark 7
История создания
Линкоры USS Wyoming и USS Arkansas были самыми старыми из линейных кораблей, переживших Вторую Мировую войну. При проектировании линейных кораблей типа Wyoming уже крепла уверенность, что остановка во всех флотах на 305-мм главном калибре явление временное, и очень скоро калибр главной артиллерии снова начнет расти. Для такого перехода имелись веские основания. Эффективность тяжелого орудия с увеличением калибра быстро возрастает, поскольку более крупный снаряд обладает большим весом. Как обычно, основной обмен мнениями и генерация идей по поводу новых линкоров происходили на ежегодной конференции в Ньюпорте. Там и было высказано предложение, чтобы следующие американские линкоры имели 10 орудий калибром 356-мм[1].



Бюро вооружений[2] ВМС США считало, что работы по новым, более тяжелым артустановкам можно начать и не дожидаясь утверждения постройки новых кораблей, которое могло произойти где-то к марту 1909 года. К декабрю 1908 года было определено, что разработка чертежей 356-мм орудия займет полгода, а затем еще восемь месяцев потребуется на то, чтобы изготовить опытный образец. С учетом изготовления десяти серийных стволов, корабль будет готов к июню 1911 года.
Однако переход на новую артиллерию при таких калибрах - затея рискованная и дорогостоящая. Опыт, полученный американцами при переходе от старого к новому образцу 305-мм орудия, показывал, что при этом процессе зачастую возникают технические осложнения, которые не могут быть заранее даже предугаданы. При этом флоты потенциальных противников бдительно следят за всеми этими процессами, стараясь не пропустить конкурента вперед и проводя аналогичные работы.
В этих условиях, чтобы оставить их позади, совершить рывок и быстро ввести в строй новые корабли с более мощными орудиями, необходимо пойти на большой риск, а именно — максимально сократить все программы испытаний и начинать постройку кораблей одновременно с началом разработки орудий. Любая ошибка здесь дорого обойдется - если новое орудие окажется неудачным, придется устанавливать имеющееся более легкое вооружение, нарушив баланс между наступательными и оборонительными элементами корабля[3].

Поэтому параллельно начали прорабатывать другой вариант - установку на кораблях ближайшей серии нового, более длинного 305-мм, 50-калиберного орудия. Работа над ним уже шла на фирме «Bethlehem Steel», и оно должно было быть готово к испытаниям 15 июля 1909 года. Новое орудие использовало те же боеприпасы, что и 305-мм/45 пушка. При этом оно не обладало недостатком, которым страдало новое английское «длинное» 305-мм/50 орудие Mark XI - вибрацией ствола при выстреле из-за недостаточной жесткости проволочной конструкции, и как следствие - низкой точностью стрельбы. У нового американского орудия, напротив, по сравнению с прежним 305-мм/45 точность стрельбы заметно возросла.
В первую очередь сделали оценку сроков разработки проекта линкора с новыми двенадцатидюймовками. Оказалось, что близость артустановки к имеющейся 305-мм/45 башне позволит сэкономить до полугода. Что касается самих орудий, то 356-мм орудие «стоило» бы дополнительно 20 месяцев, включая время, необходимое на их производство хотя бы для одного корабля.

Бюро вооружения откровенно опасалось столь решительной переориентации на новое орудие, еще даже не разработанное и неиспытанное. Пытаясь прийти к какому-то решению, специалисты проводили сложные расчеты, чтобы заранее точно оценить величину выигрыша, который сулил переход на 356-мм калибр. Расчеты осложнялись тем фактом, что из трех орудий (305-мм/45, 305-мм/50 и 356-мм/45) реально «в металле» существовало только одно - 305-мм/45, стоявшее на последних линкорах. Орудия сопоставлялись по трем основным параметрам: начальная скорость снаряда, точность огня и разрушительный эффект действия снаряда.
Взвесив все соображения, в т.ч. и эксплуатационные, 30 декабря 1908 года Генеральный Совет выбрал для постройки в проект 601 с вооружением из двенадцати 305-мм/50 орудий Mark 7. Конгресс США выделил деньги на два корабля - линкоры №№ 32 и 33, получивших названия USS Wyoming и USS Arkansas соответственно. Решение об их строительстве было утверждено 3 марта 1909 года.

В 1908 году в Лондон прибыла аргентинская комиссия, которая объявила, что правительство намеревается заказать 2 линкора, 6 эсминцев и 12 подводных лодок и существует возможность заказа третьего линкора. Откликнулись 15 фирм из Франции («Forges et chantiers de la Méditerranée»), Германии («Blohm und Voss»), Англии («Armstrong», «Vickers» и другие), Италии («Ansaldo»), США («William Cramp and Sons», «Fore River Shipyard» и другие).
В итоге, заказ на два линкора, ARA Rivadavia и ARA Moreno, достался американской верфи «Fore River Shipyard» (Куинси, Массачусетс). Аргентинские дредноуты получили на вооружение также двенадцать 305-мм/50 орудий Mark 7 в шести башнях. И пушки и башни были идентичны таковым на кораблях типа Wyoming.
Конструкция

305-мм/50 орудие Mark 7 было разработано Бюро вооружений в конце 1908 - начале 1909 года. Ствол орудия Mark 7 модификации Mod.0 (серийные №№ 180-210) состоял из лейнера, внутренней трубы «A», кожуха, фиксирующего кольца, восьми скрепляющих колец[4], казенника и хомута в казенной части. При сборке скрепляющие кольца нагревались и за счет теплового расширения увеличивался их диаметр. Нагретые кольца надевались на внутреннюю трубу ствола. После остывания кольца охватывали внутреннюю трубу, образуя прочную «скрепленную» конструкцию. Казенная часть, вворачивалась в горячем состоянии в заднюю часть ствола. Лейнер имел 72 нареза глубиной 1,27 мм, равномерной винтовой нарезки с крутизной 1 оборот на 25 калибров. Ленер вставлялся с казенной части нагретого ствола и стопорился специальным кольцом. Хомут представлял собой сборку в форме параллелепипеда в казенной части орудия, дополнительно играющую роль противовеса. К нему крепились противооткатные устройства. Затвор системы Welin модификации Mark 8 с механизмом бокового открытия Fletcher. После выстрела ствол продувался сжатым воздухом.
305-мм/50 орудие Mark 7 имело истинный калибр 304,8 мм, полную длину 15 424 мм (50,60 калибра), длину тела ствола - 15 087 мм (49,50 калибров), длину нарезной части - 12 724 мм (41,75 калибра). Ствол имел 72 нареза, нарезка - прогрессивная, от 1 оборота на 50 калибров у затвора, до 1 на 32 у дульного среза. Вес орудия без затвора - 55 296 кг, затвора - 1 014 кг, общий - 56 310 кг. Объем зарядной каморы - 239,9 дм³. Рабочее давление в канале ствола - 2760 кг/см². Длина отката - 965 мм. Расчетная живучесть ствола - 200 выстрелов полным зарядом. Скорострельность - 2-3 выстрела в минуту.



Модификация Mod.1 - перестволенное полигонное орудие Mod.0 (серийный номер стал 180L) - с новым коническим лейнером из никелевой стали, и зарядной каморой уменьшенного до 237,6 дм³ размера.
Модификация Mod.2 (№№ 183, 184 и 185) - перстволенные Mod.0 стволы была заменена моделью 0 с коническим лейнером, новым скрепляющим кольцом у затвора, дополнительным запорным кольцом, что сделало орудие немного тяжелее: вес с затвором - 56 913 кг. Зарядная камора чуть уменьшенного до 239,4 дм³ размера.
Модификация Mod.3 представляла собой шесть стволов (№№ 211-216), с новой упрощенной конструкцией: без лейнера, пять скрепляющих колец, стопорное кольцо и хомут новой конструкции с затвором.
Орудия Mod.1-Mod.3 имели 72 нареза, прогрессивной нарезки от 1 оборота на 50 калибров до 1 на 32 у дульного среза.
Mod.4 - двенадцать бывших орудий линкора USS Wyoming, перестволенных в 1921-23 годах, была первой крупной модификацией после 1918 года. Ствол имел конический лейнер постоянной нарезки - 1 оборот на 32 калибра и новые скрепляющие и стопорное кольца.
Более поздние модификации:
- Mod.5 была неудачной переделкой Mod.1 с лейнером постоянной нарезки - 1 оборот на 32 калибра.
- Mod.6 была переделкой Mod.2 с лейнером постоянной нарезки - 1 оборот на 32 калибра, модифицированными новым кольцом для лейнера и стопорным кольцом.
- Mod.7 представляла собой Mod.3 с коническим лейнером постоянной нарезки - 1 оборот на 32 калибра и дополнительным стопорным кольцом для трубы «A» и лейнера.
- Mod.8 представляла собой Mod.0 или Mod.4 с лейнером постоянной нарезки - 1 оборот на 32 калибра, креплением трубы «A» и стопорным кольцом для лейнера, а также креплением и конструкцией хомута.
- Mod.0 была дополнительно модифицирован путем добавления нового кольца-погона и стопорного кольца.
- Mod.9 была переделкой Mod.2 или Mod.6 с лейнером, имеющем продольные зазоры на выступах, постоянной нарезкой - 1 оборот на 32 калибра, а на казенной части были добавлены стопорное кольцо для трубы «A» и лейнера и хомут для крепления лейнера.
- Mod.10 была переделкой Mod.2 или Mod.6 с лейнером, имеющем продольные зазоры на выступах, постоянной нарезкой - 1 оборот на 32 калибра и стопорное кольцо для трубы «A» и лейнера и стопорное кольцо лейнера на казенной части. В отличие от предыдущих версий, в Mod.10 использовался затвор Mark 9.
- Mod.11 была модифицирована по типу Mod.7 путем удлинения зарядной каморы - объем увеличился до 243,7 дм³в 3) и обеспечивающий наклон казенной части 3,5°. В ней использовался затвор Mark 12.
- Mod.12 была модификацией Mod.10 с удлинененной зарядной каморой и уклоном казенной части в 3,5°. В отличие от Mod.11, это было оружие сложной конструкции.
- Mod.13 был аналогичной модификацией Mod.8.
- Mod.14 аналогично применялся к более раннему Mod.9.
- Mod.15 аналогично применялся к Mod.7.
- Mod.16 - к Mod.10.
- Mod.17 - к Mod.8.
- Mod.18 - к Mod.9.
- Mod.19 представлял собой Mod.2 с измененной казенной частью для использования привода затвора Smith-Asbury и с казенной частью, аналогичной Mod.18. Казенная часть ствола была обработана таким образом, чтобы в нее поместилось стопорное кольцо газогерметичного вкладыша, а сам ствол был доработан для использования с правым и левым открытием затвора путем вырезания нового шпоночного паза на 180° от первоначального положения[5].
Производство

Первое 305-мм/50 орудие Mark 7 было №180, заказанное в январе 1909 года у «Bethlehem Steel», в дальнейшем там были произведены орудия с №№ 180-216 - всего тридцать семь стволов.
Для аргентинских линкоров USS Wyoming и USS Arkansas, «Naval Gun Factory» произвел орудия с серийными номерами 795-817 и 919-920 - всего двадцать пять орудий - двадцать четыре для двух кораблей и одно запасное.
Итого, было произведено 62 ствола. Модификации и ремонт стволов выполнялись обоими заводами.
По крайней мере, одно 305-мм/50 орудие Mark 7 сохранилось до наших дней и выставлено в Форт-Майлзе на мысе Хенлопен, штат Делавэр. Орудие было демонтировано с USS Wyoming и передано на хранение на полигон ВМС в Дальгрене. Затем было установлено в Форт-Майлзе на позицию в установку армейского 305-мм/35 орудия M1895, списанного в лом.
Боеприпасы
Когда 305-мм/50 орудию Mark 7 поступили на вооружение, для них были предусмотрены только бронебойные и «общие». К 1915 году «общие» снаряды устарели и в то время уже не производились. В 1942 году к 305-мм/50 орудию Mark 7 были приняты фугасные снаряды.
К 305-мм/50 орудию Mark 7 имелись три типа боевых снарядов:
- бронебойный AP Mark 15 весом 394,6 кг, длиной 1067 мм (3,50 калибра) и содержанием взрывчатого вещества Explosive D[6] 11,3 кг.
- «общий», фактически полубронебойный, Common весом 394,6 кг, длиной 1067 мм (3,50 калибра) и содержанием взрывчатого вещества Explosive D 23,7 кг.
- фугасный HC Mark 16 весом 335,7 кг, длиной 1023 мм (3,36 калибра) и содержанием взрывчатого вещества Explosive D 26,4 кг. Помимо HC Mark 16, были также идентичные им снаряды HC Mark 21, которые произведены другим производителем.

Кроме того, имелись практические снаряды - инертные[7] фугасные и бронебойные снаряды, оснащенные чувствительными взрывателями и небольшим зарядом дымного пороха, чтобы обозначить место падения.
Когда 305-мм/50 орудию Mark 8 поступили на вооружение, к снарядам имелся пороховой заряд, состоящий из четырех полузарядов в шелковых картузах, содержащих 152,9 кг пороха марки SPD[8].
К началу Второй Мировой войны пороховой заряд выстрела 305-мм/50 орудия Mark 8 был двух видов:
- полный заряд - 152,0 кг пороха марки SPD.
- уменьшенный заряд - 102,1 кг пороха марки SPD .
Полный заряд предназначен для стрельбы бронебойными и фугасными снарядами с максимальной начальной скоростью. Пониженный заряд - для стрельбы бронебойными, фугасными и практическим снарядами со сниженной начальной скоростью. Использовался, как правило, для учебных целей и обстрела береговых целей фугасными снарядами.
Каждая часть заряда упаковывалась в шелковый картуз цилиндрической формы. Шелк как материал использовался из-за его наиболее полного сгорания в канале ствола. С одной из сторон цилиндра на торце находились подушечки с воспламенителем - черным порохом. Зерно пороха, применявшегося для метательного заряда, по форме представляло цилиндр с семью цилиндрическими отверстиями. Части картуза подавались в зарядную камору подушечками с воспламенителями назад.
Баллистика

Первоначальная начальная скорость бронебойного снаряда составляла 899 м/с. В ходе испытательных стрельб Было установлено, что это приводит к чрезмерному износу, и на серийных орудиях она была снижена.
Бронебойные снаряды 305-мм/50 орудия Mark 7, при стрельбе полным зарядом, имели начальную скорость - 884 м/с, фугасные - 914 м/с. Дальность стрельбы бронебойным снарядом при угле возвышения 15,51° - 21 946 м, время полета - 40,05 секунды. Дальность стрельбы фугасным снарядом при угле возвышения 15,26° - 21 946 м, время полета - 40,23 секунды. После модернизации башен USS Arkansas дальность стрельбы бронебойным снарядом при угле возвышения 30,00° достигла 24 900 м.
Бронебойные снаряды 305-мм/50 орудия Mark 7, при стрельбе уменьшенным зарядом, имели начальную скорость - 640 м/с, фугасные - 648 м/с.
Бронепробиваемость снаряда AP Mark 15 составляла 643 мм у дульного среза, 330 мм вертикальной и 38 мм горизонтальной брони на дистанции 12 800 м, 279 и 51 мм на 16 000 м и 254 мм вертикальной брони на 18 290 м.
Башенные установки

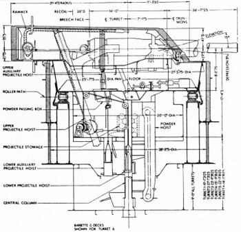
На линейных кораблях типа Wyoming 305-мм/50 орудия Mark 7 размещались в шести двухорудийных башнях Mark 9. Более длинные и тяжелые орудия потребовали устройства в качестве противовеса более длинных и объемных задних частей башен, в которых размещалось по 26 снарядов - для первой фазы боя. Дополнительная балансировка достигалась размещением в тыльной части башни 305-мм броневой плиты. Диаметр роликового погона - 6 500 мм, вес вращающейся части 498 860 кг.
Традиционные башенные механизмы были перепроектированы, с целью обеспечить заряжание орудий на любом угле возвышения. Новое устройство потребовало более объемного и тяжелого барбета. 305-мм/50 орудия Mark 7 были установлены в отдельных люльках, разделенных перегородкой по осевой линии. Как и на других американских орудийных башнях подъем орудий осуществлялся с помощью гайки и винта, орудия наводились отдельно, но были установлены так, что их можно было объединить с помощью муфт. Подъем регулировался двумя ручными приводами на внешних сторонах орудий. Привод горизонтального наведения находился в передней части башни между орудиями. Прицелы монтировались и управлялись непосредственно с цапф, и представляли собой перископы, защищенные колпаками в передней части боковых бронелистов башен.

Подача боезапаса осуществлялась в одну стадию, т.е. без перегрузочного отделения. Нижние снарядные подъемники не имели силовых приводов и требовали значительного числа людей для ручных операций с тяжелыми снарядами. Пороховые заряды хранились в погребах на нижней палубе и подавались наверх, в боевое отделение через шлюз, в котором одновременно могла быть открыта только одна дверь - либо верхняя (в башню), либо нижняя (в погреба). Таким образом обеспечивалась пожаро- и взрывобезопасность установки.
В 1942 году USS Arkansas прошел модернизацию, при этом башни главного калибра были существенно модифицированы. В результате предельный угол возвышения орудий главного калибра увеличился вдвое, — до 30°, максимальная дальность стрельбы бронебойным снарядом возросла до 24900 м. При этом заряжание осуществлялось на постоянном угле 0°.
Боезапас главного калибра на всех американских линкорах с 305-мм артиллерией составлял по 100 снарядов на орудие.
Управление огнем

Уже после начала Первой Мировой войны на линкоры типа Wyoming установили систему центральной наводки GFCS, правда, только главного калибра. Управлять стрельбой можно было из нескольких пунктов. Главные из них находились в центральном посту и боевой рубке. Командно-наблюдательные пункты располагались на топах решетчатых мачт. Там стояли артиллерийские визиры (директоры). Расстояние до цели измерялось дальномерами совмещающего типа производства компании «Bausch & Lomb». На крышах башен №2 и 5 установлены вращающиеся башенки с 6-метровыми дальномерами - для встроенных в башнях не хватало места. На крыше закрытой ходовой рубки находился также 6-метровый дальномер.
В работе GFCS большую роль играли механические компьютеры Mark 1, производства компании «Ford». Эти сложные аналоговые устройства в количестве двух единиц стояли в центральном посту, являвшимся главным пунктом управления огнем.
По опыту британских союзников линкоры обзавелись концентраторами огня - на мачтах появились круглые циферблаты указателей дистанции до цели, а на возвышенные башни были нанесены угломерные шкалы. Эти меры позволяли кораблям соединения получать взаимную информацию об установках стрельбы, координировать огонь или сосредотачивать его на одной цели.




305-мм/50 орудия Mark 7 в искусстве
305-мм/50 орудиями Mark 7 вооружены представленные в игре «Мир Кораблей» линкоры американской ветки: исследуемый IV уровня Wyoming и акционный премиумный IV уровня Arkansas Beta.
См.также
- Корабельное вооружение
Линейные корабли типа South Carolina
Линейные корабли типа Delaware
Линейные корабли типа Florida
Линейные корабли типа Wyoming
тип New York
Линейные корабли типа Rivadavia
305-мм/40 орудие Mark 3, 4
305-мм/45 орудие Mark 5, 6
305-мм/50 орудие Mark 8
356-мм/45 орудие Mark 1, 2, 3, 5
- ↑ Вооружение из десяти 356-мм/45 орудий в пяти башнях получила следующая пара линкоров типа New York.
- ↑ BuOrd - Главное управление вооружения ВМС США (англ. Bureau of Ordnance, BuOrd, буквальный перевод «Бюро боеприпасов») - подразделение Военно-морского министерства США, отвечавшее за разработку, приобретение, хранение и снабжение всех видов морских вооружений. Существовало в период с 1862 по 1959 год, когда было реорганизовано в управление вооружения ВМС (англ. Bureau of Naval Weapons, BuWeps).
- ↑ Все эти соображения тяжким грузом легли в свое время на У.Черчилля, когда он давал указание начать постройку линкоров типа Queen Elizabeth не дождавшись результатов испытаний 381-мм/42 орудия Mark I. Не меньшие опасения испытывало в 1908-1910 гг. и руководство флота США.
- ↑ В геометрическом плане, также представляющие собой трубы.
- ↑ В некоторых источниках указывается, что Mod.11 - Mod.14 имели вертикальный «падающий» затвор с приводом привода Smith-Asbury.
- ↑ Dunnite, также известный как Explosive D или пикрат аммония - взрывчатое вещество, разработанное в 1906 году майором армии США Беверли У. Данном. Пикрат аммония - это соль, образующаяся при взаимодействии пикриновой кислоты и аммиака. По химическому составу близок к более стабильному взрывчатому веществу тринитротолуолу (TNT, тротил, тол). По взрывчатым характеристикам незначительно уступает TNT (тротиловый эквивалент 0,95), но имеет меньшую чувствительность.
- ↑ Вместо взрывчатого вещества снаряжались песком или иным наполнителем для сохранения исходного веса снаряда.
- ↑ SPD (Smokeless Powder with Diphenylamine) - бездымный порох, стабилизированный с использованием дифениламина. В 1908 году было предложено использовать в качестве стабилизатора для нитроцеллюлозного пороха вместо розалинового красителя дифениламин. Первое производство пороха с новым составом было в том же году, а к 1912 году утверждена стандартная спецификация на него. В состав пороха входили 99,5% нитроцеллюлозы (12,6% азота) и 0,5% дифениламина.
Литература и источники
Литература
- Балакин С.А. Суперлинкоры Америки. «Айова», «Миссури», «Нью-Джерси».... — Война на море. — Москва: Редакция журнала «Моделист-конструктор», 2009. — 128 с. — ISBN 978-5-699-34873-2
- Friedman, Norman U.S. Battleships. — Annapolis, Maryland, USA: Naval Institute Press, 1985. — 463 с. — ISBN 0-87021-715-1
- Friedman, Norman U.S. Cruisers. — Annapolis, Maryland, USA: Naval Institute Press, 1989. — 509 с. — ISBN 0-87021-718-6
- Friedman N. Naval weapons of World War one. — Barnsley, UK: Seafort Publishing, 2011. — EPub с. — ISBN 978-1-84832-100-7
- Campbel J. Naval weapons of World War two. — Annapolis, Maryland, USA: Naval Institute Press, 1985/2002. — 406 с. — ISBN 0-87021-459-4
- Патянин С.В., Дашьян А.В., Балакин К.С., Барабанов М.С., Егоров К.В. Все крейсера Второй Мировой. — Война на море. — Москва: Яуза, ЭКСМО, 2012. — 512 с. — ISBN 5-699-19130-5
- Балакин С.А, Дашьян А.В., Патянин С.В., Токарев М.Ю., Чаусов В.Н. Линкоры Второй мировой. Ударная сила флота. — Война на море. — Москва: Яуза, ЭКСМО, 2012. — 256 с. — ISBN 978-5-699-18891-6
- Дашьян А.В., Патянин С.В. Митюков Н.В, Барабанов М.С., Иванов В.В, Гайдук А.А Флоты Второй Мировой. — Москва: Эксмо, Яуза, 2009. — 608 с. — ISBN 978-5-699-33872-6
Ссылки
- dreadnoughtproject.org(англ.)
- www.navweaps.com(англ.)
- www.shipbucket.com(англ.)
- www.german-navy.de(англ.)
- Naval History and Heritage Command(англ.)
- www.naviearmatori.net(ит.)
- www.associazione-venus.it(ит.)
- Kreiser
- forums.airbase.ru
- www.airwar.ru
- pvo.guns.ru
- seawarpeace.ru
- tsushima.su
